Лесные карты
-
esasha
- Активный участник
- Сообщения: 163
- Зарегистрирован: 09 янв 2009, 20:40
- Репутация: 24
- Откуда: Новосибирск
- Контактная информация:
Лесные карты
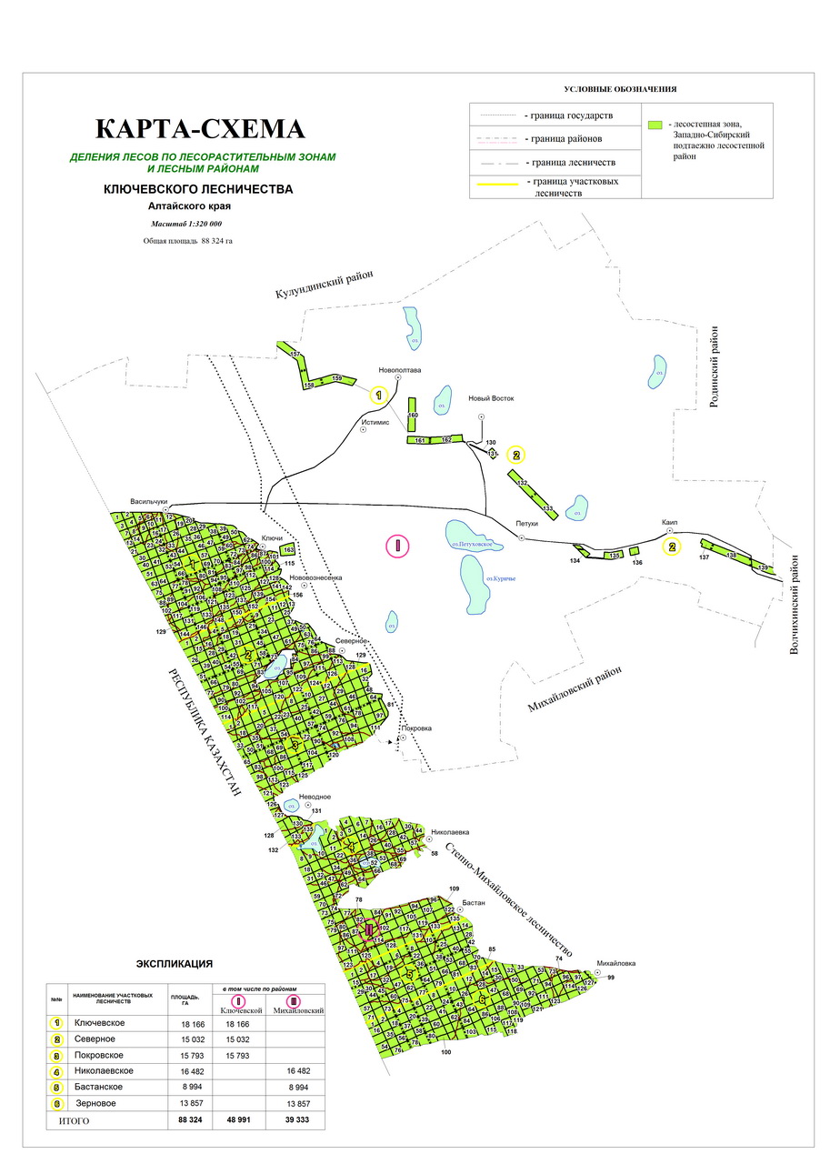
многоуважаемые и многомудрые коллеги, скажите пожалуйста) где и как можно раздобыть лесные карты, более официальным и менне заковыристым путем? Например, Регламенты по лесничествам - они доступны, но картографические материалы к ним -.... ужос. Есть картинки "Карто-схемы", в принципе, хватило бы и их, но они, кажется, намеренно занижены качеством, так что трудно разобрать номера кварталов. Можно ли где-нибудь эти картинки получить в хорошем (исходном) качестве? Спасибо)) В аттаче - пример).
- Вложения
-
- Ключевское-по зонам_новый размер.jpg (275.11 КБ) 17120 просмотров
-
А.Серов
- Активный участник
- Сообщения: 209
- Зарегистрирован: 14 янв 2010, 15:40
- Репутация: 68
- Откуда: Сыктывкар
- Контактная информация:
Re: Лесные карты
Самый официальный способ - обратиться в государственный орган управления лесами субьекта РФ (он в каждом субьекте может называться по своему: Комитет, Департамент, Министерство и пр.). Написать заявку о получении этих карт в виде выписки из Государственного лесного реестра. Стоимость 50 руб за лист формата А4. Можно попутно попробовать договориться, чтобы вам их не отксерили, а дали отсканировать. Может быть даже дадут в электронном виде, хотя это "инструкцией не предусмотрено". Это уже на усмотрение конкретного чиновника.
- rhot
- Гуру
- Сообщения: 1727
- Зарегистрирован: 25 янв 2011, 17:50
- Репутация: 194
- Ваше звание: доктор
- Откуда: Архангельск
Re: Лесные карты
Другой путь - обратитесь в лесничество напрямую.
___________(¯`·.¸(¯`·.¸ Scientia potentia est _/ {SILVA}:::{FOSS}:::{GIS} \_ Знание сила ¸.·´¯)¸.·´¯)___________
- gimran
- Гуру
- Сообщения: 1902
- Зарегистрирован: 07 июл 2010, 15:43
- Репутация: 242
- Откуда: Уфа
Re: Лесные карты
Филиал Рослесинфорга по региону — можно и в векторе получить.
Вопрос цены — к ним же. Вот у нас филиал бесплатно получил, остальным так не удавалось.
Но в этом году руководитель Рослесинфорг пообещал передать карты в Рослесозащиту (про даты передачи не слышал).
PS А вообще есть знакомые, у кого есть карты на Новосибирск в векторе, если им из МСК согласитесь перевести в WGS84 — думаю, Вы сможете с ними договориться.
Вопрос цены — к ним же. Вот у нас филиал бесплатно получил, остальным так не удавалось.
Но в этом году руководитель Рослесинфорг пообещал передать карты в Рослесозащиту (про даты передачи не слышал).
PS А вообще есть знакомые, у кого есть карты на Новосибирск в векторе, если им из МСК согласитесь перевести в WGS84 — думаю, Вы сможете с ними договориться.
- nadiopt
- Гуру
- Сообщения: 4744
- Зарегистрирован: 29 янв 2009, 13:27
- Репутация: 495
- Ваше звание: хрюкало
- Откуда: Санкт-Петербург
- Контактная информация:
Re: Лесные карты
ин гроссен фамилен нихт клювен клац клац
-
esasha
- Активный участник
- Сообщения: 163
- Зарегистрирован: 09 янв 2009, 20:40
- Репутация: 24
- Откуда: Новосибирск
- Контактная информация:
Re: Лесные карты
спасибо всем! как всегда ГИС-Лаб это просто клад! не знала об этом разделе склада, но уже придется идити путем имени А.Серова))
- nadiopt
- Гуру
- Сообщения: 4744
- Зарегистрирован: 29 янв 2009, 13:27
- Репутация: 495
- Ваше звание: хрюкало
- Откуда: Санкт-Петербург
- Контактная информация:
Re: Лесные карты
единственное, что надо узнать, нормальные ли там выписки. в московском департаменте дают вот такую никчемную макулатуру


ин гроссен фамилен нихт клювен клац клац
-
Boris
- Гуру
- Сообщения: 4233
- Зарегистрирован: 10 апр 2006, 22:34
- Репутация: -344969097
- Откуда: Париж
Re: Лесные карты
судя по формулировке "виды использования" это кастрированная копия данных из земельного кадастра.nadiopt писал(а):единственное, что надо узнать, нормальные ли там выписки. в московском департаменте дают вот такую никчемную макулатуру
---
Всегда меня в этом перечне удивляла "религиозная деятельность". Почему такой приоритет именно лесам? Вроде у нас друиды за традиционную религию не проходят.
- nadiopt
- Гуру
- Сообщения: 4744
- Зарегистрирован: 29 янв 2009, 13:27
- Репутация: 495
- Ваше звание: хрюкало
- Откуда: Санкт-Петербург
- Контактная информация:
Re: Лесные карты
я так понимаю, это для монастырей. чтоб попроще было себе древесину заготавливать. Хотя могу ошибиться
ин гроссен фамилен нихт клювен клац клац
-
Донецков
- Гуру
- Сообщения: 3058
- Зарегистрирован: 19 май 2010, 19:44
- Репутация: 189
Re: Лесные карты
А качество - это другой вопрос и своя "песня"...
Попадал по работе в "руки" и вектор, и растр (сохраненный из векторных данных), и скан "бумаги" разного качества... Очень сильно этот показатель зависит от исполнителя...
А так неплохая идея по предоставлению выписок из лесного реестра часто является профанацией...
никто не против платить, но за что и в каком качестве ...
понимаю, что до внедрения единого обменного файла типа xml Росреестра еще очень далеко, но за ч/б ксерокс паршивого качества платить жалко...
Попадал по работе в "руки" и вектор, и растр (сохраненный из векторных данных), и скан "бумаги" разного качества... Очень сильно этот показатель зависит от исполнителя...
А так неплохая идея по предоставлению выписок из лесного реестра часто является профанацией...
никто не против платить, но за что и в каком качестве ...
понимаю, что до внедрения единого обменного файла типа xml Росреестра еще очень далеко, но за ч/б ксерокс паршивого качества платить жалко...
- nadiopt
- Гуру
- Сообщения: 4744
- Зарегистрирован: 29 янв 2009, 13:27
- Репутация: 495
- Ваше звание: хрюкало
- Откуда: Санкт-Петербург
- Контактная информация:
Re: Лесные карты
вы же смотрели, кошерный вектор отскакивает метров на 30
ин гроссен фамилен нихт клювен клац клац
- gimran
- Гуру
- Сообщения: 1902
- Зарегистрирован: 07 июл 2010, 15:43
- Репутация: 242
- Откуда: Уфа
Re: Лесные карты
Нормальную выписку ГЛР обещают в Есаул сделать, слышал на презентации в Питере от разработчиков из Рослесинфорга.
[ Сообщение с мобильного устройства ]
[ Сообщение с мобильного устройства ]
- nadiopt
- Гуру
- Сообщения: 4744
- Зарегистрирован: 29 янв 2009, 13:27
- Репутация: 495
- Ваше звание: хрюкало
- Откуда: Санкт-Петербург
- Контактная информация:
Re: Лесные карты
блажен кто верует
москвичам никто не мешал и из топола нормальную выписку делать, но что-то помешало
москвичам никто не мешал и из топола нормальную выписку делать, но что-то помешало
ин гроссен фамилен нихт клювен клац клац
Кто сейчас на конференции
Сейчас этот форум просматривают: нет зарегистрированных пользователей и 21 гость